Foto leveres af Google Street View og kan være upræcist:

Butik til leje, Thisted, Asylgade 1a

Asylgade 1a, 7700 Thisted
  • Butik til leje
  • 625 m2
  • 41.406 kr. per måned
Butik til leje, Thisted, Asylgade 1a
Asylgade 1a, 7700 Thisted
  • Butik til leje
  • 625 m2
  • 41.406 kr. per måned
FÅ MERE INFO OM LOKALET
Du linkes til en anden portal, som evt. kan kræve betaling eller oprettelse

Butik til leje, Thisted, Asylgade 1a

Calibra Invest Aps
Morten Palmelund
tlf: 20887768
Se email-adressexxxxxxxxxxxxxxxx

Læs om udlejer

Fakta

  • 280821
  • Butik
  • Restaurant
  • Showroom
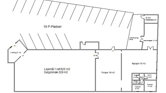
  • 625 m2
  • 496.875 kr.
  • 41.406 kr.
  • 795 kr.
  • 19
FÅ MERE INFO OM LOKALET
Du linkes til en anden portal, som evt. kan kræve betaling eller oprettelse

Velbeliggende Detailhandels ejendom ved stor trafikeret p-plads

ejemålet på Asylgade 1a er placeret i et centralt og velbesøgt detailhandelsområde omkring Frederiks Torv, der fungerer som en af Thisteds store parkeringspladser og dermed sikrer et højt niveau af trafik og synlighed for forretninger i området. Det betyder, at der dagligt passerer en stor mængde potentielle kunder tæt forbi ejendommen. I nærområdet finder man et væld af både lokale og etablerede aktører som Super Brugsen, Limfjordsteatret, Hotel Thisted. Et bredt udvalg af klinikker og rådgivningsvirksomheder, bidrager også til det dynamiske erhvervsliv i området. Derudover ligger Thisted Station kun 150 meter fra lejemålet, hvilket giver nem adgang til offentlig transport og øger tilgængeligheden for kunder og ansatte. Ejendommen har 19 parkeringspladser i umiddelbar tilknytning, hvilket gør det nemt for kunder at parkere og besøge butikken. Alt i alt er lejemålets placering ideel for detailhandel, da det kombinerer høj fodgængertrafik med let adgang til parkeringsfaciliteter og offentlig transport.

Information og data

Dette butikslejemål, som også kan anvendes til Restaurant eller Showroom, ligger på Asylgade i Thisted. Thisted har postnummeret 7700, og ligger i kommunen Thisted, som ligger i Region Nordjylland. Lokalet er i alt 625 m2. Lejepris: 496.875 kr. per år. Der medfølger 19 parkeringspladser til ejendommen.